Description
Looking for affordable industrial units, garages, or shipping containers to rent in Sarratt, Hertfordshire? Our well-maintained and conveniently located spaces are ideal for a variety of storage and business needs. Whether you’re a small business needing additional space, an individual seeking secure storage, or looking for a shipping container for unique storage solutions, our options in Sarratt can meet your requirements.
Why Rent in Sarratt?
Nestled in the beautiful Hertfordshire countryside yet close to major transport links such as the M25, A41 and M1 motorways, Sarratt offers an ideal location for businesses and individuals needing storage or workspace. Located within easy reach of Rickmansworth, Watford, Hemel Hempstead, and other Hertfordshire towns, Sarratt provides accessibility without the congestion of larger industrial hubs.
Our Rental Options
Industrial Units to Let in Sarratt
- Spacious: Ground floor open plan industrial units ranging in size suitable for a variety of uses.
- Secure: Barrier at entrance to site and electric roller shutters on units ensure the safety of your property.
- Easy Access: Convenient loading and unloading.
Garages for Rent in Sarratt
- Multi-Use: Ideal for car storage, tool storage, or as a small workshop.
- Affordable: Competitive rates that make it a cost-effective option for secure storage.
- Flexible Access: Access on your terms, so you can manage your belongings whenever needed.
Shipping Containers for Rent in Sarratt
- Versatile Storage: Perfect for additional storage, whether for personal or business use.
- Secure and Weatherproof: Sturdy containers that protect your belongings in all weather conditions.
Key Benefits
- Convenient Location: Easy access to main roads and nearby towns.
- Affordable: Cost-effective options to suit various budgets and potentially small business rates relief.
- Secure and Well-Maintained: Our units, garages, and containers are regularly maintained to ensure high-quality standards.
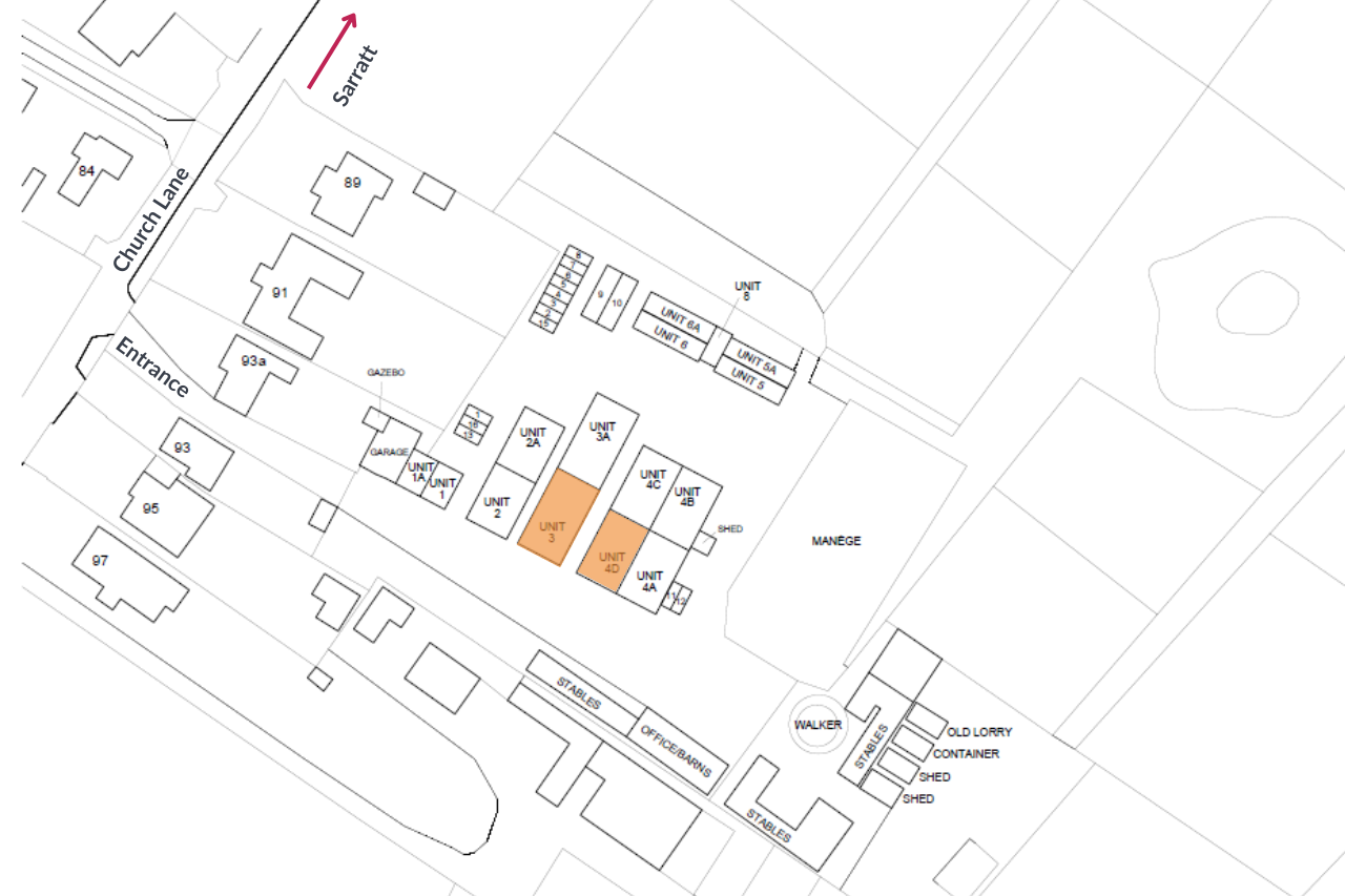
Details
1,118 sq ft to 1,724 sq ft
Industrial
Let
Interested in this space?
John McLaughlin
Junior Estates Surveyor
Property Units
| Property / Unit | Type | Size | Price | Status |
|---|---|---|---|---|
Unit 3 |
Industrial |
1,724 sq ft |
£14 psf +VAT pa |
Available |
Unit 4d |
Industrial |
1,118 sq ft |
£14 psf +VAT pa |
Available |















